Homes | DRM482A
Property map Enter your address or APN to check if this home fits on your property
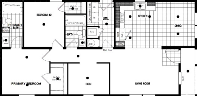
2 bedrooms
2 full bathrooms
1,152 sq. ft.
23' 8" x 48'
Dream Silver standard features
Construction
2x6 Floor Joists -16” O.C. 2x6 Exterior Walls -16” O.C. Architectural Shingles 19/32” OSB T&G Floor Decking In-Floor Waste Plumbing Kiln Dried Framing Lumber 96” Sidewall (Flat Ceiling) 30# Roof Load 2x8 Rough Sawn Fascia 3/12 Nominal Pitch (4:12 pitch single sections)
2x6 Floor Joists -16” O.C. 2x6 Exterior Walls -16” O.C. Architectural Shingles 19/32” OSB T&G Floor Decking In-Floor Waste Plumbing
Kiln Dried Framing Lumber Homes Direct
Affordable homes at your fingertips
Get started with Homes Direct
Find, design, and order your next home in a few clicks.
Sign up Dealer License #: DL1081954
|
2 bedrooms
2 full bathrooms
1,152 sq. ft.
23' 8" x 48'
96” Sidewall (Flat Ceiling)
30# Roof Load
2x8 Rough Sawn Fascia
3/12 Nominal Pitch (4:12 pitch single sections) Exterior
LP Smart Panel Siding w/5/50 Yr Warranty 36” Front and Rear Doors Continuous Eave Soffit Venting Ridge Style Roof Venting 4” Window Trim 8” Eaves (Dble Wide) 6” Eaves (Single Wide) Exterior GFI Receptacle (1)
LP Smart Panel Siding w/5/50 Yr Warranty 36” Front and Rear Doors Continuous Eave Soffit Venting Ridge Style Roof Venting
4” Window Trim 8” Eaves (Dble Wide) 6” Eaves (Single Wide) Exterior GFI Receptacle (1) Mechanical
ENERGY STAR Standard Dual Pane Low-E/Argon Windows 6” Recessed LED lighting T/O R-40 Ceiling Insulation, Blown-in R-21 Exterior Wall Insulation R-33 Floor Insulation All Electric Appliances 200 Amp Electrical Service EcoBee T-Stat Forced Air Elect Down Flow Furnace 40 Gallon Electric Water Heater Plumbed/Wire For Washer and Dryer Receptacle at Fresh Water Inlet Shut-Off Valves at Toilets & Sinks Whole House Shut-off Valve AC/HP Ready Smoke Alarms, Bdrms & Living Areas Deadbolts on Front and Rear Doors All Copper Wiring GFI Receptacle at all Wet Areas Porch Lights at each Exterior Entry Egress Windows in all Bedrooms
ENERGY STAR Standard Dual Pane Low-E/Argon Windows 6” Recessed LED lighting T/O R-40 Ceiling Insulation, Blown-in R-21 Exterior Wall Insulation R-33 Floor Insulation All Electric Appliances 200 Amp Electrical Service EcoBee T-Stat Forced Air Elect Down Flow Furnace 40 Gallon Electric Water Heater
Plumbed/Wire For Washer and Dryer Receptacle at Fresh Water Inlet Shut-Off Valves at Toilets & Sinks Whole House Shut-off Valve AC/HP Ready Smoke Alarms, Bdrms & Living Areas Deadbolts on Front and Rear Doors All Copper Wiring GFI Receptacle at all Wet Areas Porch Lights at each Exterior Entry Egress Windows in all Bedrooms Interior
Tape and Texture Drywall Throughout Round Sheetrock Corners Brocade Style Ceiling Drywall Finish Cabinet Upgrade (Dover White or Knotty Alder) No-Wax Vinyl Flooring (Kitchen, Utility, Baths) 5# Carpet Pad New Wave 25oz Carpet Entry Lino Baseboard Molding in Lino Areas Ceiling Air Returns (Bedrooms) Laminated Counter Tops Crescent Counter Edge Vented Wardrobe & Linen Shelving 2-Panel Interior Doors Wood Window Interior Wrap Nickel Hardware Throughout
Tape and Texture Drywall Throughout Round Sheetrock Corners Brocade Style Ceiling Drywall Finish Cabinet Upgrade (Dover White or Knotty Alder) No-Wax Vinyl Flooring (Kitchen, Utility, Baths) 5# Carpet Pad New Wave 25oz Carpet Entry Lino
Baseboard Molding in Lino Areas Ceiling Air Returns (Bedrooms) Laminated Counter Tops Crescent Counter Edge Vented Wardrobe & Linen Shelving 2-Panel Interior Doors Wood Window Interior Wrap Nickel Hardware Throughout Kitchen
SAMSUNG Refer Stainless Steel 18 c/f (w/icemaker) SAMSUNG Range Stainless Steel (Glass Top Range) Range Hood 30” Stainless Steel Kitchen Sink 8” Stainless Steel Single Lever Faucet with Sprayer Fire Extinguisher Under Sink
SAMSUNG Refer Stainless Steel 18 c/f (w/icemaker) SAMSUNG Range Stainless Steel (Glass Top Range) Range Hood 30” Stainless Steel
Kitchen Sink 8” Stainless Steel Single Lever Faucet with Sprayer Fire Extinguisher Under Sink Bathroom
60” Fiberglass Tub/Shower in Bathroom Adjustable Shower Heads China Lavy Sinks Exhaust Fans w/Light in each Bath Comfort Height Elongated Toilets Lavy Cabinet Height 36”
60” Fiberglass Tub/Shower in Bathroom Adjustable Shower Heads China Lavy Sinks
Exhaust Fans w/Light in each Bath Comfort Height Elongated Toilets Lavy Cabinet Height 36”
2x6 Floor Joists -16” O.C. 2x6 Exterior Walls -16” O.C. Architectural Shingles 19/32” OSB T&G Floor Decking In-Floor Waste Plumbing Kiln Dried Framing Lumber 96” Sidewall (Flat Ceiling) 30# Roof Load 2x8 Rough Sawn Fascia 3/12 Nominal Pitch (4:12 pitch single sections) LP Smart Panel Siding w/5/50 Yr Warranty 36” Front and Rear Doors Continuous Eave Soffit Venting Ridge Style Roof Venting 4” Window Trim 8” Eaves (Dble Wide) 6” Eaves (Single Wide) Exterior GFI Receptacle (1)
2x6 Floor Joists -16” O.C. 2x6 Exterior Walls -16” O.C. Architectural Shingles 19/32” OSB T&G Floor Decking In-Floor Waste Plumbing Kiln Dried Framing Lumber
96” Sidewall (Flat Ceiling)
30# Roof Load
2x8 Rough Sawn Fascia
3/12 Nominal Pitch (4:12 pitch single sections) LP Smart Panel Siding w/5/50 Yr Warranty 36” Front and Rear Doors Continuous Eave Soffit Venting Ridge Style Roof Venting 4” Window Trim 8” Eaves (Dble Wide) 6” Eaves (Single Wide) Exterior GFI Receptacle (1)
Images of homes are solely for illustrative purposes and should not be relied upon. Images may not accurately represent the actual condition of a home as constructed, and may contain options which are not standard on all homes.
2 Bed | 2 Bath | 1,176 Sq. Ft. | 23' 8" x 50'
2 Bed | 2 Bath | 1,188 Sq. Ft. | 27' x 44'
2 Bed | 2 Bath | 1,026 Sq. Ft. | 27' x 38'
2 Bed | 2 Bath | 1,296 Sq. Ft. | 27' x 48'